全国统一服务热线:高先生 13600054403    服务电话:高先生 13600054403 微信在线留言
产品中心
网站首页 > 产品中心 > 岩土监测产品 > 配件配件
接线箱

接线箱

型 号:接线箱
原产地:加拿大FISO
用 途:专为光纤传感装置设计和附加。

接线箱

专为光纤传感装置设计和附加。

  • 概述

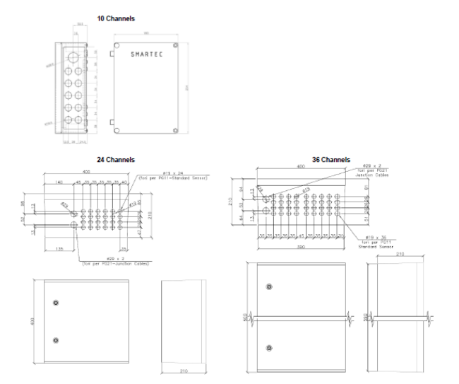
接线箱用于将传感器连接到主多光纤缆。接线箱包含匹配适配器,用于匹配安装在传感器光缆末端和多芯光缆末端的两个外部光纤接头,或手动将传感器连接到读取单元。

接线箱有四种标准尺寸。其他尺寸可按要求提供。小型版本可容纳1个传感器,其他版本可容纳多达10-2436个传感器。24个和36个传感器的连接箱也可容纳SOFO分离器和MUST耦合器。

如果传感器的无源部分长度过大,则可以在最大的盒箱子中卷取额外的长度

  • 主要特征
传感器配合适配器支架
分路器/耦合器安装
适合恶劣环境
传感器压盖螺母兼容 

  • 应用

桥梁结构健康监测SHM
建筑监测
大坝监测
隧道变形监测
管道局部变形分析 

  • 技术参数


  • 订购信息

40.1013 接线箱

选项:
 通道数10, 24 or 36
 选项:所有接线箱均提供IP 65保护。埋入灌浆或填充泡沫可达到额外保护。
 选项:安全锁钥匙(仅适用于24通道和36通道接线盒)。