光纤光栅渗压计 V2.0
型 号:PY-F-OM-B03
原产地:国产
用 途:主要适用于隧道、输水隧洞、边坡等应用场景


光纤光栅渗压计 V2.0
型 号:PY-F-OM-B03
原产地:国产
用 途:主要适用于隧道、输水隧洞、边坡等应用场景
PY-F-OM-B03
1.产品概述
传感器介绍:光纤光栅渗压计适用于长期埋设在水工结构物或其它混凝土结构物及土体内,测量结构物或土体内部的渗透(孔隙)水压力,也可通过压力测试出水位高低,可根据客户要求加工螺口,测试管道或容器的内部压力。特有的温度低敏感特性大大降低了温度对传感器测试的影响,加上内置温度传感器,可精确地对温度变化导致的偏差进行补偿修正。
传感器特点:
专有的内置温度补偿结构设计,温度计精度±0.25℃,保证了测量精度,同时可以进行环境温度测量;
不锈钢密封结构设计配合独立研发的密封材料,耐水压强度 2MPa;
弹性体与膜片同轴结构设计,保证应力传递的有效性和线性,确保传感器的重复性和精度;
长期稳定可靠,耐腐蚀,耐老化、无源不受干扰;
高精度、高分辨率;
应用场景:主要适用于隧道、输水隧洞、边坡等应用场景。

光纤光栅渗压计
表 1 光纤光栅渗压计主要性能参数

4.系统组网图

系统组网示意图
传感器安装过程中应做好记录,存档。其内容包括,传感器安装的具体位置、位置编号、传感器编号、传感器初始波长数据、埋设安装日期、天气状况及安装人员。

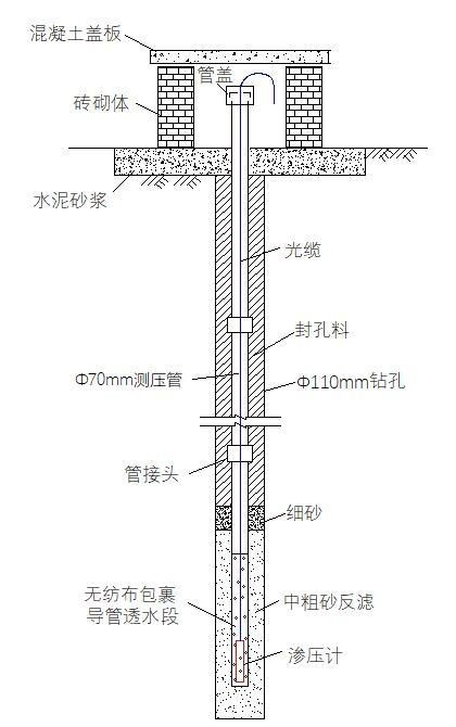
安装示意图
光纤光栅传感器的维修与故障排查工作主要集中在对光缆接头的定期检查以及终端盒的维护方面。由于传感器安装完成后,通常难以接触,导致其修理工作受到限制,故出现故障时可查阅下列问题及可能的解决办法,有关更多的故障排除帮助可联系我司咨询。
症状:传感器不能正常读数
√ 使用红光笔检查传输光缆是否中断;
√ 光纤光栅解调仪的 FC/PC 头是否连接完好;
√ 光纤光栅解调仪是否已进入正常工作状态,光纤光栅解调仪的通讯连接是否正常。